
作者:admin 發布時間:2019-11-19 14:08 瀏覽次數:192
隨著我國進入WTO與國際接軌,國際國內集裝箱吊具使用日益頻繁。因此,我公司根據市場需求,拓寬了產品范圍:開發了集裝箱吊具修理業務:無論場橋還是岸橋,國產還是進口,修理還是改造,我們都有能力精 心分解,認真修理,把原來結構復雜簡化為同等式或是更優化的配置,讓客戶能放心選用。公司對修理吊具工 藝嚴格控制:首先清洗、分解,然后分粗;中,進行探傷,再根據結構損壞程度一般補焊嚴重局部更新。對于液 壓件及電器選用進口件或合資、國內名牌配置,目前,我公司已于上海外高橋、張華浜、寶山碼頭、軍工路碼 頭、青島、寧波等集裝箱公司進行了修理,數量有30多臺。客戶一致認為我公司修理吊具工藝完整、價格合理、 質吊可靠、服務及時,歡迎新老客戶光臨指導。
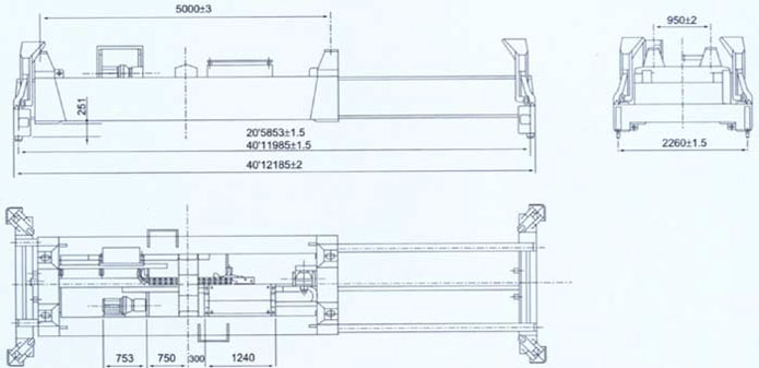
| 參數 型號 | 橋吊用吊具 | 輪胎吊用吊具 |
| 額定起重量 | 50t /40t | 40t |
| 允許載荷偏心 |
長度方向 1.25m 寬度方向 0.26m |
長度方向 1.25m 寬度方向 0.26m |
| 四角吊耳負重 | 15t × 4 | 12.5t × 4 |
| 伸縮( 20'-40' ) | ~30s | ~30s |
| 導板( 180 °) | 5~7s | |
| 轉銷( 90 °) | < 1.5s | < 1.5s |
| 導板力矩 | 120Nm | |
| 電源電壓 | AC360V( 三相 3phases) | AC380V (三相 3 phases ) |
| 頻率 | 50Hz 或 60Hz | 50Hz 或 60Hz |
| 控制電壓 | AC20 - 250V | AC20 - 250V |
| 總功率 | 7.5kw | 7.5kw |
| 電動機過載保護值 | Max.18A | Max.18A |
| 防保等級 | IP54 | IP54 |
| 電磁閥電壓 | 根據用戶定 | 根據用戶定 |
| 油泵排量 | 40L/min | 40L/min |
| 系統工組壓力 | 100bar | 100bar |
| 油箱容積 | 150L | 150L |
| 環境溫度 | -20~ +40 ℃ | -20~ +40 ℃ |
| 轉銷形式 | ISO 浮動轉銷,油缸驅動 | ISO 浮動轉銷,油缸驅動 |
| 伸縮驅動方式 | 油馬達鏈傳動 | 油馬達鏈傳動 |
| 導板裝置 | 油缸驅動扇形齒輪 | 固定式或由用戶定 |
